Handelspand met hoekligging en hoge visibiliteit op toplocatie te Berchem
Op de levendige Grotesteenweg, één van de belangrijkste verbindingsaders van Berchem, vinden we dit handelspand met uitzonderlijke zichtbaarheid dankzij de strategische hoekligging en grote raampartijen die zorgen voor een overvloed aan natuurlijk licht. De ligging is bovendien uitstekend: vlakbij het stadscentrum, belangrijke invalswegen, de autosnelweg en het station van Berchem ideaal voor wie vlot bereikbaar wil zijn.
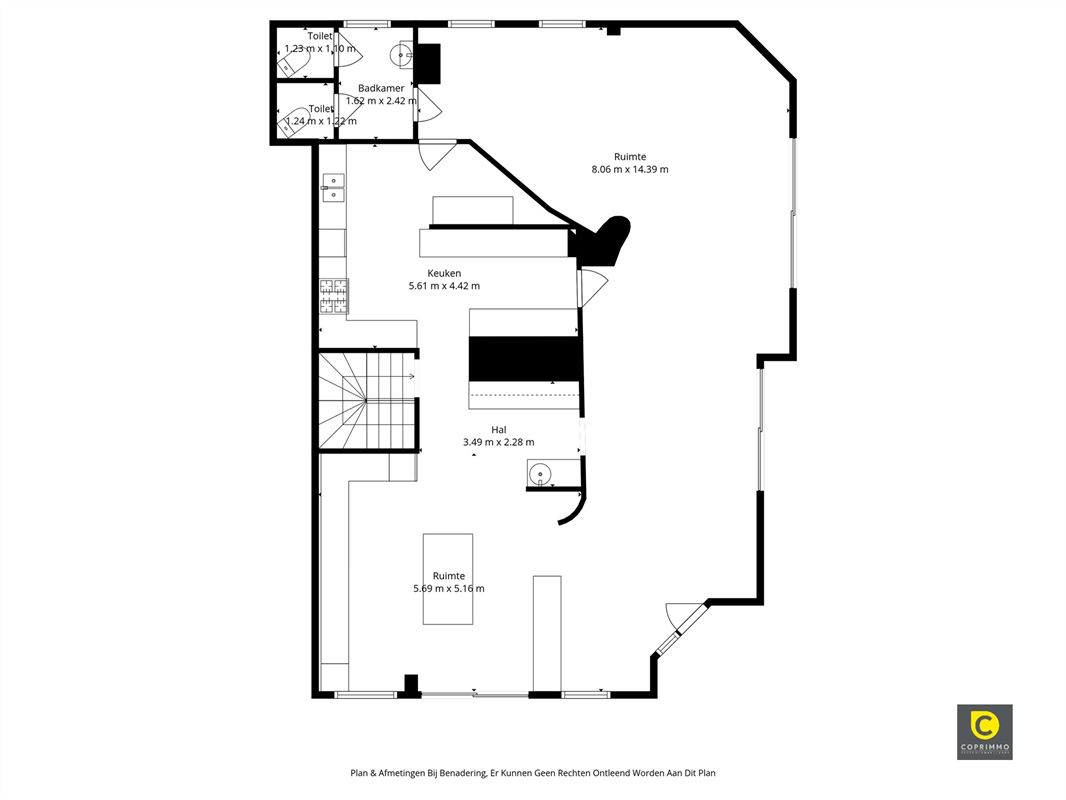
Indeling
Het gelijkvloers omvat een verbruiksruimte met toog en zitgedeelte, een ingerichte keuken en een sanitaire blok. De ruimte is vandaag ingericht als traiteur / broodjeszaak, maar biedt tal van mogelijkheden voor andere doeleinden zoals kantoor, winkelruimte of showroom.
Via een vaste trap is er een rechtstreekse toegang naar de kelderverdieping, die momenteel dienstdoet als bergruimte en verbindt met de parkeergarage.
Ondergronds bevinden zich drie privatieve autostaanplaatsen. Momenteel zijn er twee van deze parkeerplaatsen afgesloten en geïntegreerd in de kelderruimte, wat extra opslag- of werkruimte biedt.
Extra troeven
- Uitstekende hoekligging met maximale visibiliteit
- Grote raampartijen en veel lichtinval
- Geschikt voor diverse handelsactiviteiten (traiteur, kantoor, winkel, praktijk, showroom, )
- Rechtstreekse toegang van handelsruimte naar kelder en parkeergedeelte
- Drie privatieve parkings, waarvan twee momenteel mee geïntegreerd zijn in de kelder
- Vlotte bereikbaarheid via invalswegen, openbaar vervoer en Berchem station
- 135 m² cfr. EPC
Dit pand biedt dankzij zijn ligging, indeling en zichtbaarheid een unieke opportuniteit voor ondernemers die hun zaak willen vestigen op een commerciële toplocatie in Berchem.















